Interior Design
The start of designing…
Consultation – Research – Mood boards – Sketching, Floor plan – Renderings – Bringing it to life!
Step 1 & 2: Connection & Discovery
Everything starts with a good ol’ sit-down (or a call, if you’re miles away). It’s all about getting to know you—your style, your space, and what makes it yours. We’ll chat about your inspiration, what’s working (and what’s not), your budget, and your ideas. Think of it as swapping stories over coffee—easy and real.
From there, I move into the discovery phase—gathering textures, colors, and pieces that feel like home. It’s not about trends; it’s about heart. Thoughtful and slow on purpose, this step helps uncover a vision that feels just right—like a front porch sunset or your favorite cozy nook.
Step 3 & 4: Vision & Layout
This is where the vision starts to take shape. After we’ve talked through your style and gathered inspiration, I create a mood board of colors, textures, and pieces that reflect you. It’s laid-back and visual—like flipping through a scrapbook of what your space could become.
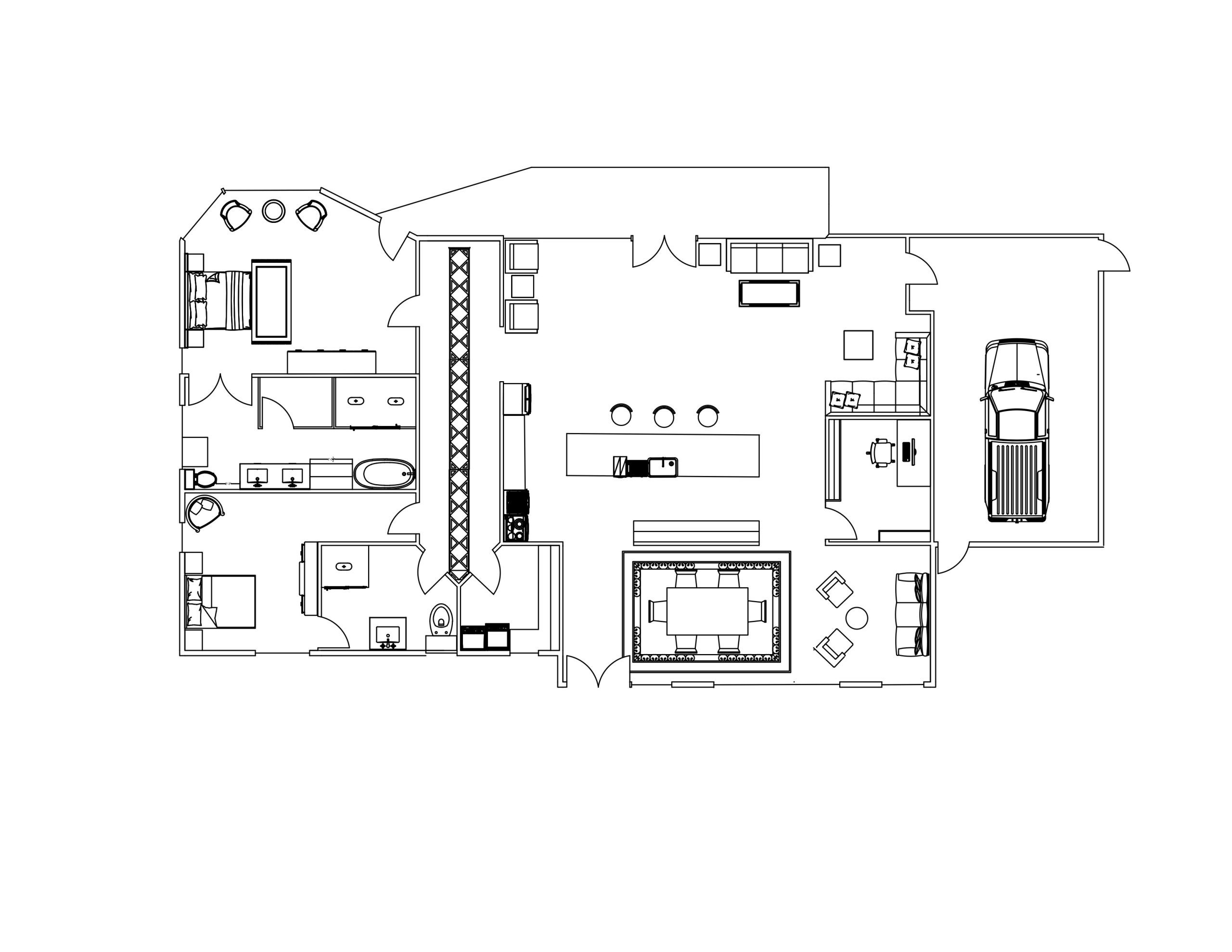
From there, I sketch ideas by hand and map out a floor plan that shows how everything fits together—how the light flows, how the room breathes, and how each piece finds its place. We’ll review it together, make any tweaks, and ensure it feels just right before moving forward.
Step 5 & 6: Renderings & Bringing It to Life
Here’s where the vision starts to feel real. Using soft, lifelike renderings, I bring your space to life—layering in the colors, textures, and pieces we’ve chosen along the way. It’s not about creating a picture-perfect model; it’s about capturing the feeling—the cozy glow of a lamp in the corner, the way a vintage rug warms the floor, or how open shelves add soul to the walls.
Once the renderings feel just right, it’s time to step off the page and into your home. With every plan in place, we start bringing the vision to life—piece by piece, layer by layer. I’ll be there through it all, making sure every chair, shelf, and light finds its perfect place.
By the end, your home won’t just look beautiful—it’ll feel like you. Lived-in, loved, and ready for whatever life brings next.
Kitchen Finish Schedule
Bathroom AutoCAD 2D Renderings
Kitchen AutoCAD 2D Renderings
2500 House
